Nieuw in verkoop:Havenbuurt 19C, 1156 AL Marken - Foto
Nieuw in verkoop
+63

Havenbuurt 19C 1156 AL Marken € 225.000,- k.k.

  • Woonhuis
  • 3 kamers
  • 2 slaapkamers
  • Bouwjaar 1925
  • 39 m² perceeloppervlakte
  • 63 m² gebruiksoppervlakte
  • G Energielabel G

Beschrijving

Wonen op een plek van historische betekenis voor schiereiland Marken? In deze vrijstaande woning aan de Havenbuurt 19C zorgde Sijtje Boes er in de jaren `20 van de vorige eeuw voor dat Marken toeristisch gezien op de kaart werd gezet. Het karakteristieke houten huisje in Markerstijl geeft je elke dag het ultieme vakantiegevoel. Met zicht op de levendige haven en de lager gelegen buurten op werven, waan je je hier in een levende ansichtkaart.

Het pandje heeft niet alleen een woonbestemming, maar ook de functie van maatschappelijke voorziening. Er is in al die jaren nauwelijks iets veranderd aan de historische sfeer die het huis ademt. Om die reden deed het tot voor kort nog dienst als kijkhuisje. Dat betekent dat er flink wat tijd, werk en liefde nodig is om het te laten voldoen aan de eisen van deze tijd. Voor een liefhebber van historie of voor iemand die kansen ziet om op deze mooie plek een woonhuis, winkel of B&B te hebben, is dat bijzaak. Want als je er eenmaal woont, voel je je de koning te rijk, net als destijds ‘Koningin van Marken’ Sijtje Boes dat deed. Ben jij degene die op slag verliefd is geworden op dit bijzondere, authentieke Marker huisje? Maak dan snel een afspraak voor een vrijblijvende bezichtiging!

Deze woning staat op erfpacht grond. De regels hiervoor staan in de Algemene Erfpachtvoorwaarden Materieel Beheer Rijkswaterstaat (RVOB) uit 2009. De jaarlijkse betaling voor de erfpacht (de canon) is € 585,27 per jaar. De huidige erfpachtperiode loopt tot 31 juli 2047. Aanvaarding kan in overleg op korte termijn.

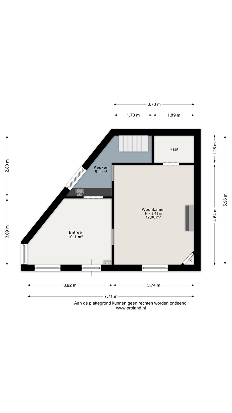
Eerste verdieping
Zoals in veel typisch Marker huizen wordt er geleefd op de eerste verdieping van het huis. Die verdieping ligt op dijkniveau en vanaf de beun betreedt je de woning. Je stapt vanuit de entree – waar je ook een kantoortje van kunt maken, zodat je achter je bureau af en toe weg kunt dromen - de bijzondere woonkamer in, met zicht op de haven. Daar zie je de seizoenen aan je voorbij trekken, met veel reuring in de zomer en verstilde rust in de winter. Over de Gouwzee trekken de prachtige Hollandse luchten aan je voorbij. Aan de achterzijde van deze verdieping bevindt zich de keuken.

Tweede verdieping
Een vaste trap brengt je op de bovenste etage van dit historische huis. Vanaf de overloop heb je prachtig zicht op de achtergelegen werven en de vele groen-witte, houten huizen die Marken rijk is. Aan deze overloop liggen twee slaapkamers, beide met prachtig uitzicht over de haven en de Gouwzee en voorzien van bergruimte achter de knieschotten. De kleinste kamer is bovendien voorzien van een wastafel. Met een slimme nieuwe indeling maak je hier je eigen tijdloze slaapvertrekken met koninklijk uitzicht van.

Begane grond
Benedendijks, bereikbaar via de trap onder het luik op de eerste verdieping, is een nog open ruimte van 31m² beschikbaar met een stahoogte van iets meer dan 2 meter. Hier zijn momenteel toilet en wastafel te vinden. Ook deze verdieping kan op slimme wijze bij de rest van het huis betrokken worden. Doordat deze ruimte ook vanaf de straat te betreden is, is het ook mogelijk om hier een knusse B&B van te maken met eigen opgang.

Buiten
Deze woning beschikt over een zogenaamde beun aan de voorzijde van het huis. Hier geniet je niet alleen van zicht over de haven, maar ook van de zon door de ligging op het zuidwesten.

Omgeving
Op het schiereiland Marken heb je 365 dagen per jaar het échte eilandgevoel. De Havenbuurt is de centrale ontmoetingsplaats op het eiland, met lekkere restaurants en gezellige terrasjes direct aan de haven. Dat betekent dat hier altijd wat te doen en te beleven valt, al is het er in de winter een stuk rustiger dan in de zomer. Vanaf de haven volg je het wandelpad dat je in 10 km rondom het hele schiereiland brengt. Heerlijk uitwaaien dus! Vanaf de haven is het slechts een klein stukje lopen naar de supermarkt, lagere school, sportschool en buurthuis waar veel activiteiten worden georganiseerd. Ook de bushalte is op korte loopafstand te vinden. In minder dan een halfuur brengt de bus je naar het metrostation van de Noord-Zuidlijn van Amsterdam. Zo is de hoofdstad binnen handbereik, maar woon je toch op een plek waarvan je het instant vakantiegevoel krijgt. Nieuwsgierig geworden? Neem dan snel contact op voor een vrijblijvende bezichtiging van deze authentieke woning op een fantastische plek op Marken!

Bijzonderheden:
Authentiek en historisch vrijstaand Markerhuis met een verhaal
Veel potentie voor wonen, werken en/of B&B
Fantastische ligging aan de gezelligheid van de haven
Unieke plek met prachtig uitzicht

Algemeen
Alle zich in deze aanbieding bevindende informatie is door ons met grote zorg samengesteld. Met betrekking tot deze informatie aanvaarden wij echter geen enkele aansprakelijkheid, noch kan aan deze informatie enig recht worden ontleend. Op deze woning zijn de asbest-, oudbouw en niet-bewonersclausule van toepassing.

Kaart

Kenmerken

Overdracht

Referentienummer
00456
Vraagprijs
€ 225.000,- k.k.
Status
Nieuw in verkoop
Aanvaarding
In overleg
Aangeboden sinds
Dinsdag 10 maart 2026

Bouw

Type object
Woonhuis, eengezinswoning, vrijstaande woning
Soort bouw
Bestaande bouw
Bouwperiode
1925
Dakbedekking
Bitumen
Dakpannen
Type dak
Samengesteld

Oppervlaktes en inhoud

Perceeloppervlakte
39 m²
Woonoppervlakte
62,92 m²
Inhoud
300 m³
Oppervlakte overige inpandige ruimten
34,32 m²
Oppervlakte gebouwgebonden buitenruimte
15 m²

Indeling

Aantal bouwlagen
2 (en 1 kelder)
Aantal kamers
3 (waarvan 2 slaapkamers)
Aantal toiletten
1

Tuin

Type
Zonneterras
Hoofdtuin
Ja
Oriëntering
West
Staat
Goed onderhouden

Energieverbruik

Energielabel
G

Uitrusting

Warm water
Geiser
Verwarmingssysteem
Houtkachel
Kachel
Ventilatie methode
Natuurlijke ventilatie
Tuin aanwezig
Ja
Heeft schuur/berging
Ja
Heeft een dakraam
Ja

Kadastrale gegevens

Kadastrale aanduiding
Marken B 1436
Perceeloppervlakte
39 m²
Omvang
Geheel perceel
Eigendomsituatie
Erfpacht
Lasten
€ 585,27 per jaar
Een gratis waardebepaling van je woning

Een gratis waardebepaling van je woning

Wil je jouw woning voor de beste prijs verkopen en heb je interesse in een vrijblijvende waardebepaling? Vul dan onderstaand formulier in en wij nemen contact met je op voor een afspraak.

Gratis waardebepaling