Verkocht:Bernhardlaan 50, 1141 CM Monnickendam - Foto
Verkocht
+44

Bernhardlaan 50 1141 CM Monnickendam

  • Appartement
  • 3 kamers
  • 2 slaapkamers
  • 1 badkamer
  • Bouwjaar 2024
  • 75 m² gebruiksoppervlakte
  • A+++ Energielabel A+++

Beschrijving

In het nieuw gebouwde appartementencomplex De Regenboog is nu dit superleuke 3-kamer appartement op de tweede verdieping in de verkoop. Het appartement van 75m2 op Bernhardlaan 50 is voorzien van de nieuwste duurzame technieken. Zo heeft het een A+++ label, is het gasloos en voorzien van een warmtepomp en warmte-terug-win-installatie. Het appartement heeft een eigen parkeerplaats en berging op de begane grond. Het is mogelijkheid een extra 2e parkeerplaats erbij te kopen.

Dit luxe appartement heeft een moderne keuken en badkamer, telt 2 slaapkamers en onder de pvc-vloer met visgraatmotief zorgt de vloerverwarming voor een comfortabele warmte. Ben je op zoek naar een nieuw en comfortabel appartement, aan de rand van de binnenstad van Monnickendam? Maak dan snel een afspraak voor een vrijblijvende bezichtiging!

Het complex
De woning is gelegen in appartementencomplex De Regenboog aan de Bernhardlaan, dat medio 2024 is opgeleverd. In het complex, dat voorzien is van een centrale hal met videocom-installatie, zijn in totaal 41 appartementen gerealiseerd. Dit appartement is gelegen op de tweede verdieping aan de westkant van het complex en is met de lift bereikbaar. Buiten, direct naast het complex, is een eigen privéparkeerplaats beschikbaar en op de begane grond onder het complex heb je de beschikking over een eigen berging voor de stalling van fietsen.

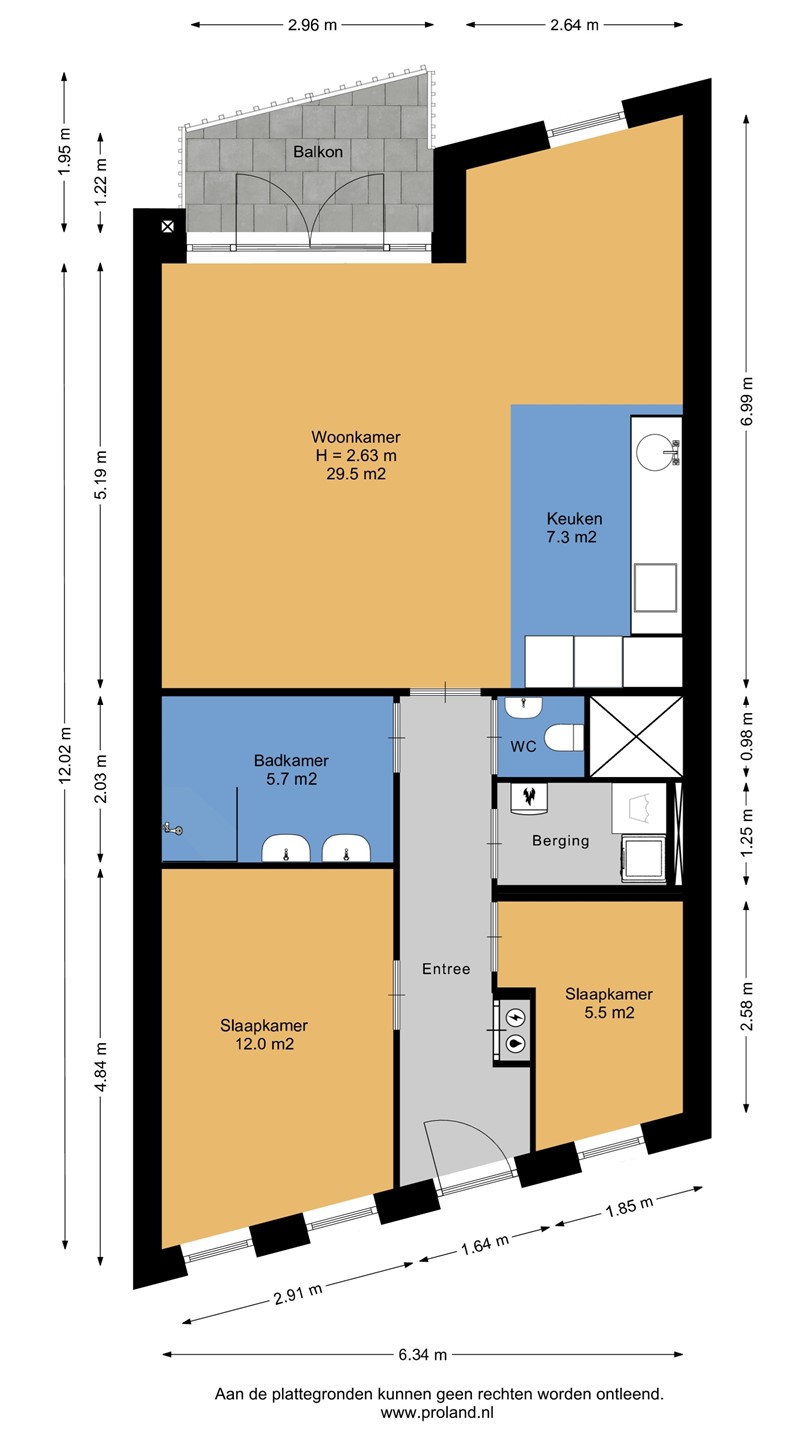
Indeling
Via de galerij betreed je het praktisch ingedeelde 3-kamer appartement. Het is geheel voorzien van een pvc-vloer met visgraatmotief en vloerverwarming en plafonds en wanden zijn strak gestuukt in neutrale kleurstelling. Vanuit de lange en lichte hal zijn alle vertrekken te bereiken. Direct na de entree ligt links de grootste slaapkamer en rechts de kleinere slaapkamer. Vervolgens bereik je de inpandige berging, met de aansluiting voor wasmachine en droger, met daarnaast de toiletruimte met zwevend toilet en fonteintje. Aan de overzijde ligt de moderne badkamer, die is voorzien van dubbele wastafel, designradiator, badkamermeubel en een inloopdouche.

De ruime living is heerlijk licht door de grote raampartij met openslaande deuren naar het balkon op het westen. Hier vang je de zon vanaf de middag tot hij ondergaat. Een gezellige zithoek is direct naast dit balkon gesitueerd. De strakke L-vormige open keuken is voorzien van ingebouwde koel/vries-combinatie, vaatwasser, oven en 4-pits inductie kookplaat. Vanuit de keuken schuif je zo aan de eettafel voor een avond lang tafelen met vrienden of familie.

Omgeving
Even naar de markt of een terrasje pakken? Dit appartement is centraal gelegen aan de rand van de historische binnenstad van Monnickendam. Ook sportschool, zwembad, supermarkt en andere faciliteiten zijn binnen handbereik. De woning is gelegen nabij het Hemmeland, waar je heerlijk kunt wandelen, fietsen en watersporten. Bovendien stap je vlak bij op de bus die je in 15 minuten naar station Noord van de Amsterdamse Noord-Zuidlijn brengt.

Ben je op zoek naar een recent en comfortabel 3-kamer appartement aan de rand van de binnenstad van Monnickendam, voorzien van eigen parkeerplaats? Maak dan een vrijblijvende afspraak voor een bezichtiging!

Bijzonderheden:
Modern en nieuw 3-kamerappartement van 75m
Eigen parkeerplaats en berging
Balkon op het westen
Moderne keuken en badkamer
Servicekosten van € 134,67 p.m. voor het appartement en €7,24 p.m.voor de parkeerplaats
Mogelijkheid tot het kopen van een 2e parkeerplaats
Energielabel A+++

Algemeen
Alle zich in deze aanbieding bevindende informatie is door ons met grote zorg samengesteld. Met betrekking tot deze informatie aanvaarden wij echter geen enkele aansprakelijkheid, noch kan aan deze informatie enig recht worden ontleend.

Kaart

Kenmerken

Overdracht

Referentienummer
00446
Vraagprijs
€ 475.000,- k.k.
Servicekosten
€ 134,67
Status
Verkocht
Aanvaarding
In overleg
Aangeboden sinds
Vrijdag 31 oktober 2025
Laatste wijziging
Maandag 15 december 2025

Bouw

Type object
Appartement, galerijflat
Woonlaag
2e woonlaag
Soort bouw
Bestaande bouw
Toegankelijkheid
Mindervaliden
Senioren
Bouwperiode
2024
Dakbedekking
Bitumen
Type dak
Platdak
Isolatievormen
HR-glas
Volledig geïsoleerd

Oppervlaktes en inhoud

Woonoppervlakte
75 m²
Inhoud
250 m³
Oppervlakte externe bergruimte
11,4 m²
Oppervlakte gebouwgebonden buitenruimte
4,7 m²

Indeling

Aantal bouwlagen
1
Aantal kamers
3 (waarvan 2 slaapkamers)
Aantal badkamers
1 (en 1 apart toilet)

Locatie

Ligging
Aan rustige weg
Dichtbij openbaar vervoer
In woonwijk
Nabij school

Energieverbruik

Energielabel
A+++

Uitrusting

Aantal parkeerplaatsen
1
Warm water
Elektrische boiler
Verwarmingssysteem
Vloerverwarming
Warmtepomp
Warmterecuperatiesysteem
Ventilatie methode
Mechanische ventilatie
Badkamervoorzieningen
Douche
Dubbele wastafel
Heeft kabel-tv
Ja
Glasvezelaansluiting aanwezig
Ja
Heeft schuur/berging
Ja
Heeft ventilatie
Ja

Vereniging van Eigenaren

Ingeschreven bij de KvK
Ja
Jaarlijkse vergadering
Ja
Periodieke bijdrage
Ja
Reservefonds
Ja
Onderhoudsverwachting
Ja
Opstal verzekering
Ja

Kadastrale gegevens

Kadastrale aanduiding
Monnickendam E 3059
Perceeloppervlakte
4.674 m²
Omvang
Appartementsrecht of complex
Eigendomsituatie
Eigen grond
Indexnummer
A-21
Kadastrale aanduiding
Waterland E 3059
Perceeloppervlakte
2.337 m²
Omvang
Appartementsrecht of complex
Eigendomsituatie
Eigen grond
Indexnummer
119
Kadastrale aanduiding
Monnickendam E 3069
Perceeloppervlakte
4.674 m²
Omvang
Appartementsrecht of complex
Eigendomsituatie
Eigen grond
Indexnummer
A-55
Een gratis waardebepaling van je woning

Een gratis waardebepaling van je woning

Wil je jouw woning voor de beste prijs verkopen en heb je interesse in een vrijblijvende waardebepaling? Vul dan onderstaand formulier in en wij nemen contact met je op voor een afspraak.

Gratis waardebepaling