Nieuw in verkoop:Fluwelen Burgwal 3, 1141 TX Monnickendam - Foto
Nieuw in verkoop
+65

Fluwelen Burgwal 3 1141 TX Monnickendam € 950.000,- k.k.

  • Woonhuis
  • 4 kamers
  • 3 slaapkamers
  • 1 badkamers
  • Bouwjaar 2004
  • 104 m² perceeloppervlakte
  • 130 m² gebruiksoppervlakte
  • A Energielabel A

Beschrijving

Wonen aan een eeuwenoude gracht in historisch Monnickendam, maar dan wél in een relatief nieuwe woning? Dit woonhuis aan de Fluwelen Burgwal 3 is in 2004 gebouwd in traditionele stijl, met een fraaie trapgevel, ramen met roedeverdeling, kamer-en-suite deuren en hoge plafonds. De moderne woonkeuken is in 2025 vernieuwd en heeft veel daglicht toetreding wat voor veel woongenot zorgt. De woning is zeer hoogwaardig afgewerkt met gebruik van goede materialen. Dat betekent niet alleen fraai om naar te kijken, maar vooral om in te wonen. Wil je de kans niet voorbij laten gaan om te wonen aan deze rustig gelegen gracht? Neem dan snel contact op voor een vrijblijvende bezichtiging!

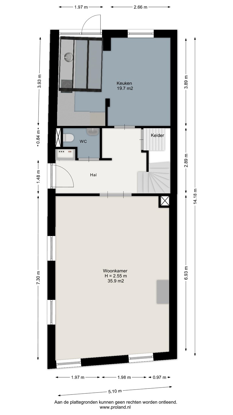
Indeling begane grond
Hoewel er in de voorgevel een voordeur zichtbaar is, bevindt de officiële voordeur zich in de zijgevel aan de Schoolstraat. Achter deze voordeur tref je de ruime hal, voorzien van meterkast, moderne toiletruimte met fonteintje, trapopgang en toegang tot de verrassend praktische kelder van 17,5m² met daglichttoetreding. Aan de voorzijde van de woning ligt de woonkamer, die via de en-suite-deuren vanuit de hal te betreden is. Door de parketvloer in visgraatmotief, de ramen met roedeverdeling aan twee zijden van de woonkamer en het fraaie hoge plafond met sierlijst, is dit een heerlijk ruime en lichte kamer met uitzicht op de voorliggende gracht en hefbrug. De openhaard geeft de ruimte extra cachet.

Aan de achterzijde van de woning is de woonkeuken welke in 2025 is vernieuwd die is voorzien van airconditioning. Ook hier is prettig veel daglichttoetreding. De keuken is gebouwd in L-opstelling en beschikt over diverse inbouwapparatuur waaronder een oven, inductiekookplaat met geïntegreerde afzuiging, koelkast en vaatwasser. Vanuit de keuken bereik je de knusse stadstuintje die op het noordwesten gelegen is.

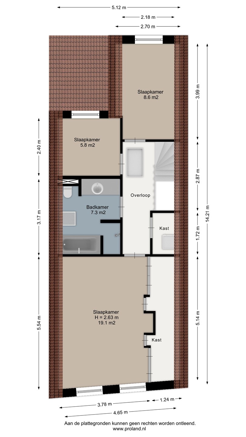
Eerste verdieping
Via de trap in de hal bereik je de vertrekken op de eerste etage. De grootste slaapkamer is aan de voorzijde gelegen. In deze slaapkamer zijn de nok en balken fraai in het zicht gelaten. Over een van de wanden is een flinke kastenwand gemaakt. Al met al een ruimtelijk ogend en prettig slaapverblijf met zicht op de gracht en brug aan de voorzijde. Aan de achterzijde zijn nog twee kamers te vinden. Centraal aan de overloop ligt de badkamer die met marmeren tegels is bekleed. Je vindt hier een wastafel met meubel, een ligbad, tweede toilet en een ruime inloopdouche met stort- en handdouche. Aan de overloop is tot slot nog een aparte ruimte voor wasmachine en droger te vinden. Middels de vlizotrap bereik je vanaf de overloop ook de bovenliggende zolder.

Buiten
De knusse stadstuin van deze woning is gelegen op het noordwesten en is bereikbaar via een eigen achterom. Het tuintje is grotendeels bestraat en voorzien van een groene border. Aan de achterzijde is een overkapping naast de berging (v.v. elektra) gemaakt, waar plek is voor een gezellig zitje.

Omgeving
Deze woning ligt aan een rustige gracht in het hart van Monnickendam. De gezellige en historische binnenhaven met cafés, restaurant en sfeervolle terrasjes ligt op steenworp afstand. Winkels liggen op loopafstand en de warenmarkt op zaterdag vindt om de hoek van deze woning plaats. Ook andere faciliteiten, als scholen, sportschool, zwembad, etc. zijn in de nabije omgeving te vinden. Niet ver van de woning stap je bovendien op de bus die je 15 minuten naar station Noord van de Amsterdamse Noord-Zuidlijn brengt.

Wil je modern wonen in historische setting? Maak dan snel een afspraak voor een vrijblijvende bezichtiging van dit unieke huis aan de Fluwelen Burgwal.

Bijzonderheden:
Relatief nieuwe woning (2004) aan één van de eeuwenoude grachten
Nieuwe woonkeuken (2025) en ruime kelder met daglichttoetreding
Gebouwd in oude stijl met fraaie details en een hoogwaardige afwerking
Energielabel A
Op loopafstand van alle faciliteiten en op 15 minuten van Amsterdam

Algemeen
Alle zich in deze aanbieding bevindende informatie is door ons met grote zorg samengesteld. Met betrekking tot deze informatie aanvaarden wij echter geen enkele aansprakelijkheid, noch kan aan deze informatie enig recht worden ontleend.

Kaart

Kenmerken

Overdracht

Referentienummer
00458
Vraagprijs
€ 950.000,- k.k.
Status
Nieuw in verkoop
Aanvaarding
In overleg
Aangeboden sinds
Vrijdag 6 maart 2026

Bouw

Type object
Woonhuis, grachtenpand, eind woning
Soort bouw
Bestaande bouw
Bouwperiode
2004
Dakbedekking
Dakpannen
Type dak
Zadeldak
Isolatievormen
Dakisolatie
HR-glas
Muurisolatie
Vloerisolatie
Volledig geïsoleerd

Oppervlaktes en inhoud

Perceeloppervlakte
104 m²
Woonoppervlakte
130,3 m²
Inhoud
609 m³
Oppervlakte overige inpandige ruimten
24 m²
Oppervlakte externe bergruimte
0,6 m²

Indeling

Aantal bouwlagen
3 (en 1 kelder)
Aantal kamers
4 (waarvan 3 slaapkamers)
Aantal badkamers
1 (en 1 apart toilet)

Locatie

Ligging
Aan rustige weg
Aan vaarwater
Aan water
Dichtbij openbaar vervoer
In centrum
Nabij school

Tuin

Type
Achtertuin
Hoofdtuin
Ja
Oriëntering
Noord west
Heeft een achterom
Ja
Staat
Goed onderhouden

Energieverbruik

Energielabel
A

CV ketel

CV ketel
Vaillant
Warmtebron
Gas
Bouwjaar
2016
Eigendom
Eigendom

Uitrusting

Warm water
CV-ketel
Verwarmingssysteem
Airconditioning
Centrale verwarming
Open haard
Ventilatie methode
Mechanische ventilatie
Keukenvoorzieningen
Inbouwapparatuur
Badkamervoorzieningen
Douche
Inloopdouche
Ligbad
Toilet
Vloerverwarming
Wastafel
Heeft airco
Ja
Heeft kabel-tv
Ja
Heeft een open haard
Ja
Heeft een rookkanaal
Ja
Tuin aanwezig
Ja
Heeft schuur/berging
Ja
Heeft een dakraam
Ja
Heeft zonwering
Ja
Heeft ventilatie
Ja

Kadastrale gegevens

Kadastrale aanduiding
Monnickendam A 3695
Perceeloppervlakte
104 m²
Omvang
Geheel perceel
Eigendomsituatie
Eigen grond
Een gratis waardebepaling van je woning

Een gratis waardebepaling van je woning

Wil je jouw woning voor de beste prijs verkopen en heb je interesse in een vrijblijvende waardebepaling? Vul dan onderstaand formulier in en wij nemen contact met je op voor een afspraak.

Gratis waardebepaling