Open huis: 28 maart 11:00 - 15:00
Prijsverlaging:Johan Buijeslaan 8, 1141 GS Monnickendam - Foto
Prijsverlaging
+66

Johan Buijeslaan 8 1141 GS Monnickendam € 950.000,- k.k.

  • Woonhuis
  • 5 kamers
  • 4 slaapkamers
  • 2 badkamers
  • Bouwjaar 1969
  • 639 m² perceeloppervlakte
  • 175 m² gebruiksoppervlakte
  • C Energielabel C

Beschrijving

Een vrijstaande bungalow aan de rand van Monnickendam waarin je tot in lengte van dagen kunt blijven wonen? Aan de Johan Buijeslaan 8, met zicht op de dijk naar Marken, is deze levensloopbestendige bungalow dan precies wat je zoekt. Met vier slaapkamers, twee badkamers, een garage, berging, werkplaats én een oprit voor drie auto’s, is hier alle ruimte voor het hele gezin, maar kunnen ook senioren prima zelfstandig blijven wonen. Veel modernisaties zijn al voor je gedaan. Zo is er een nieuwe meterkast met 14 groepen, liggen er 16 zonnepanelen op het zuid georiënteerde dakvlak, is de woonkamer uitgebouwd en heeft het huis een moderne keuken. Interesse gekregen? Maak dan snel een afspraak voor een vrijblijvende bezichtiging!

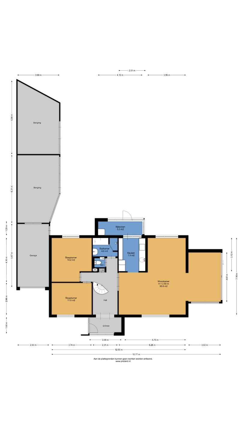
Begane grond
De meeste leefruimte van deze vrijstaande bungalow bevindt zich op de begane grond. Vanuit de entree stap je de royale hal in, met trapopgang, moderne toiletruimte met fonteintje, en een nieuwe meterkast met 14 groepen. Aan de rechterzijde bereik je de heerlijk lichte woonkamer. Hier is, door de uitbouw met twee grote glazen schuifpuien met elektrische zonneschermen, alle ruimte voor een royale zit en een grote eethoek. De half open keuken is aan beide wanden opgesteld en is voorzien van een granieten blad. In de keuken zijn een inbouwkoelkast, apothekerskast, quooker, vaatwasser, oven/magnetron en 4-pits inductiekookplaat te vinden. Vanuit de keuken bereik je de aangebouwde bijkeuken met aansluiting voor wasmachine en droger. Een loopdeur biedt toegang tot de tuin.

Aan de linkerzijde van de hal liggen twee goed bemeten slaapvertrekken. De grote slaapkamer is voorzien van een rolluik. De grootste is aan de tuinzijde gelegen en beschikt over inbouwkasten over de volle breedte van de wand. Tot slot is vanuit de hal de volledig betegelde badkamer te bereiken. Deze is voorzien van een jacuzzi, wastafel en douchehoek.

Verdieping
Via de vaste wenteltrap kom je op de eerste etage. Aan de overloop vallen gelijk de vele deuren op, met daarachter praktische bergruimte. In één van die bergruimtes is de Cv-ketel handig weggewerkt. Een andere deur geeft toegang tot de badkamer die is vergroot middels een dakkapel en voorzien is van een wastafel, douche en aansluiting voor de wasmachine. Achter weer een andere deur bevindt zich het separate, tweede toilet. Aan weerszijden van de overloop is een ruime slaapkamer gesitueerd, ieder voorzien van raam in de zijgevel en een dakraam. Ook in deze twee slaapkamers past moeiteloos een tweepersoonsbed.

Buiten
Deze levensloopbestendige woning is gelegen aan de autoluwe Johan Buijeslaan, een zijstraat van de Cornelis Dirkszoonlaan in de wijk Markgouw, waar alleen bestemmingsverkeer komt. De vrijstaande bungalow heeft aan twee opritten, met plek voor drie auto’s, een verwarmde garage met elektrische deur, die ook vanuit de achtertuin middels een loopdeur te bereiken is. Achter deze garage ligt nog een verrassend ruime werkplaats en een separate ruime schuur voor tuinmeubilair en fietsen. Dit is een ideale ruimte om als kantoor aan huis of fitnesskamer te gebruiken.

De taps toelopende tuin ligt aan drie zijden van de bungalow: de voortuin op het zuiden, de zijtuin, met terras direct aan de woonkamer op het zuidoosten, en de achtertuin, met terras aan de bijkeuken, op het noordoosten. Achter de tuin loopt een sloot. Daarachter loopt de dijk naar Marken. De gehele tuin is fraai aangelegd met groene afscheidingen, verschillende groene borders en sierstraatwerk.

Omgeving
De wijk Markgouw is centraal gelegen, op korte afstand van het oude centrum van Monnickendam met haar gezellige haven en diverse horecagelegenheden. Ook het winkelcentrum `t Spil voor al je dagelijkse boodschappen is binnen handbereik.
Een bushalte ligt op een paar minuten lopen. De bus brengt je in circa 15 minuten naar halte Noord van de Amsterdamse Noord-Zuidlijn. Ook andere voorzieningen, zoals apotheek, supermarkt, sportschool, scholen, tennis- en voetbalvereniging zijn in de nabije omgeving van deze vrijstaande bungalow te vinden. Vanuit de woning wandel je ook zo naar recreatiegebied Hemmeland, direct aan de andere zijde van de dijk, en de wekelijkse warenmarkt in de historische binnenstad.

Deze keurig onderhouden woning voor een leven lang woonplezier wacht op nieuwe bewoners. Zie jij jezelf hier wel wonen? Dan maken we graag een afspraak voor een vrijblijvende bezichtiging!

Bijzonderheden:
Prachtig gelegen vrijstaande bungalow met oprit, verwarmde garage, berging en werkplaats
Fraai aangelegde tuin aan drie zijden van de woning
4 slaapkamers waarvan 2 op de begane grond
2 badkamers, waarvan 1 op de begane grond
Levensloopbestendige woning op gunstig gelegen locatie nabij alle belangrijke voorzieningen.

Algemeen
Asbest-, oudbouw en niet-bewoners clausule zijn van toepassing.
Alle zich in deze aanbieding bevindende informatie is door ons met grote zorg samengesteld. Met betrekking tot deze informatie aanvaarden wij echter geen enkele aansprakelijkheid, noch kan aan deze informatie enig recht worden ontleend.

Kaart

Kenmerken

Overdracht

Referentienummer
00441
Vraagprijs
€ 950.000,- k.k.
Status
Prijsverlaging
Aanvaarding
In overleg
Aangeboden sinds
Dinsdag 28 oktober 2025
Laatste wijziging
Donderdag 19 maart 2026

Bouw

Type object
Woonhuis, bungalow, vrijstaande woning
Soort bouw
Bestaande bouw
Toegankelijkheid
Mindervaliden
Senioren
Bouwperiode
1969
Dakbedekking
Dakpannen
Type dak
Zadeldak
Isolatievormen
Dakisolatie
HR-glas
Spouwmuren

Oppervlaktes en inhoud

Perceeloppervlakte
639 m²
Woonoppervlakte
175,4 m²
Inhoud
658 m³
Oppervlakte externe bergruimte
46,2 m²

Indeling

Aantal bouwlagen
2
Aantal kamers
5 (waarvan 4 slaapkamers)
Aantal badkamers
2 (en 2 aparte toiletten)

Locatie

Ligging
Aan rustige weg
Dichtbij openbaar vervoer
In woonwijk
Nabij school

Tuin

Type
Tuin rondom
Hoofdtuin
Ja
Oriëntering
Zuid-west
Heeft een achterom
Ja
Staat
Goed onderhouden

Energieverbruik

Energielabel
C

CV ketel

CV ketel
Nefit
Warmtebron
Gas
Bouwjaar
2016
Eigendom
Eigendom

Uitrusting

Aantal parkeerplaatsen
3
Aantal overdekte parkeerplaatsen
1
Warm water
CV-ketel
Verwarmingssysteem
Centrale verwarming
Ventilatie methode
Mechanische ventilatie
Badkamervoorzieningen Badkamer 1
Douche
Jacuzzi
Vloerverwarming
Wastafelmeubel
Badkamervoorzieningen Badkamer 2
Douche
Wastafel
Heeft kabel-tv
Ja
Tuin aanwezig
Ja
Heeft een garage
Ja
Heeft een jacuzzi
Ja
Heeft rolluiken
Ja
Heeft schuur/berging
Ja
Heeft een dakraam
Ja
Heeft een schuifpui
Ja
Heeft zonwering
Ja
Heeft zonnepanelen
Ja
Heeft ventilatie
Ja

Kadastrale gegevens

Kadastrale aanduiding
Monnickendam E 323
Perceeloppervlakte
639 m²
Omvang
Geheel perceel
Eigendomsituatie
Eigen grond
Open huis 28 maart 11:00 - 15:00
*** OPEN HUIS***
ZATERDAG 28 MAART VAN 11.00 TOT 15.00 UUR
Een gratis waardebepaling van je woning

Een gratis waardebepaling van je woning

Wil je jouw woning voor de beste prijs verkopen en heb je interesse in een vrijblijvende waardebepaling? Vul dan onderstaand formulier in en wij nemen contact met je op voor een afspraak.

Gratis waardebepaling