Verkocht:Ledig Erf 4, 1141 SP Monnickendam - Foto
Verkocht
+33

Ledig Erf 4 1141 SP Monnickendam

  • Woonhuis
  • 3 kamers
  • 2 slaapkamers
  • 1 badkamers
  • Bouwjaar 1999
  • 94 m² perceeloppervlakte
  • 73 m² gebruiksoppervlakte
  • C Energielabel C

Beschrijving

GEZIEN DE VELEN CONTACTAANVRAGEN KUNNEN WIJ NIET OP ALLE CONTACTAANVRAAG REAGEREN.

DE WONING IS TE BEZICHTIGEN TIJDENS DE OPEN DAGEN:
WOENSDAG 11 JUNI VAN 15.00 TOT 17.00 UUR
DONDERDAG 12 JUNI VAN 9.00 TOT 10.00 UUR.

DE WONING WORDT PER INSCHRIJVING VERKOCHT. DEZE SLUIT DINSDAG 17 JUNI OM 12.00 UUR.

Op een verscholen plek in de historische binnenstad van Monnickendam ligt deze vrijstaande woning aan het Ledig Erf 4. Door de ligging is het hier heerlijk rustig wonen, terwijl de gezelligheid van de terrasjes en de warenmarkt op zaterdag op loopafstand ligt. Het huis is recent voorzien van nieuwe vloerisolatie met vloerverwarming op de begane grond en heeft houten kozijnen met dubbel glas. Ook het interieur is flink onderhanden genomen, met moderne keuken en badkamer, een visgraat laminaatvloer op de gehele begane grond en grotendeels op de eerste etage, en strak wit gestuukte wanden en plafonds in de hele woning. Dit betekent dat je alleen je meubels nog maar hoeft neer te zetten en kunt wonen. Nog meer goed nieuws: de woning is snel te betrekken! Zie jij jezelf hier al wonen? Neem dan contact op voor een vrijblijvende bezichtiging!

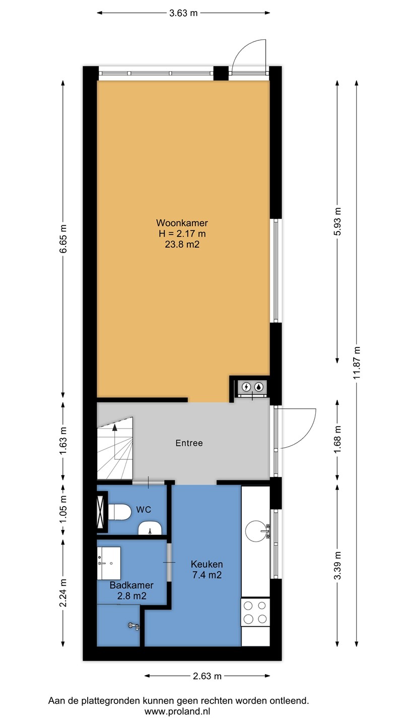
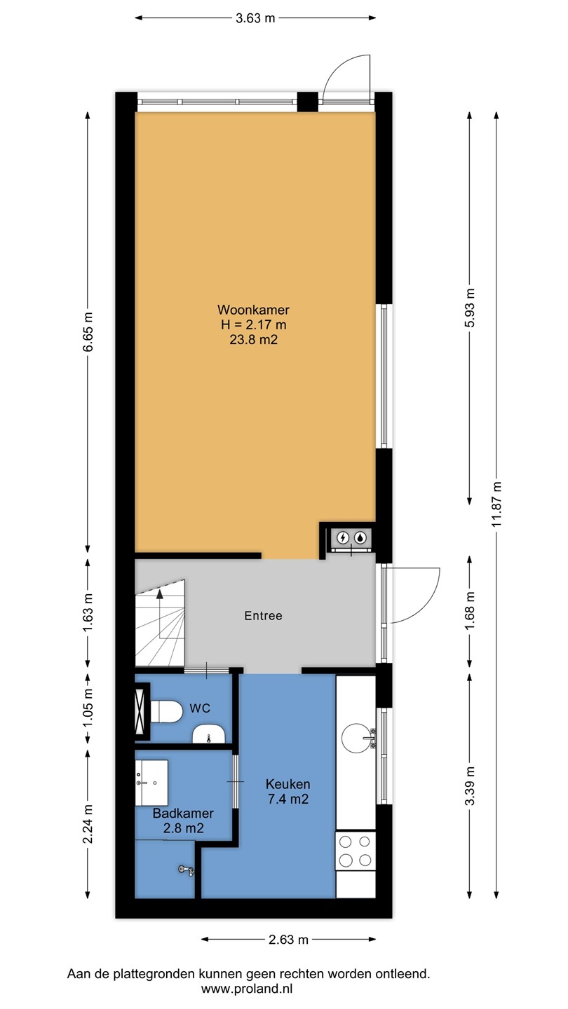
Indeling begane grond
Vanuit de hal met garderobe, meterkast, trapopgang en moderne toiletruimte met fonteintje, bereik je aan de rechterzijde de lichte woonkamer met balkenplafond. De praktische ruimte biedt plek aan een gezellige eethoek en een knusse zithoek en heeft een deur naar de besloten tuin. Aan de andere kant van de hal ligt de moderne keuken in wandopstelling, voorzien van diverse inbouwapparatuur, waaronder een vaatwasser, oven en 5-pits gasfornuis. Via de keuken bereik je ook de moderne badkamer met een wastafel met meubel en ruime douche.

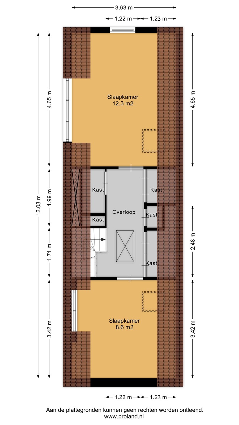
Eerste verdieping
Op de eerste etage zijn 2 slaapkamers te vinden, beide vergroot door middel van een dakkapel en voorzien van een dakraam. De grootste slaapkamer aan de achterzijde heeft een extra raam in de achtergevel met zicht op de tuin. Aan de overloop zijn praktische kasten gerealiseerd, waardoor de aansluiting voor de wasmachine en de Cv-ketel aan het zicht worden onttrokken en er veel opbergruimte is. Een vlizotrap biedt vanaf hier toegang tot de zolder met bergruimte.

Buiten
Door de beschutte ligging kun je hier genieten van de rust in de besloten stadstuin, die bereikbaar is via de steeg, met recht van overpad voor de achterburen. Deze tuin is keurig bestraat en op het noordoosten gelegen.

Omgeving
De woning ligt verscholen in hartje Monnickendam en heeft een ideale ligging ten opzichte van alle faciliteiten. Winkels, de warenmarkt op zaterdag, supermarkt, restaurants en terrasjes zijn lopend bereikbaar. Ook is de vesting vlak bij voor een lekkere wandeling en is recreatiegebied het Hemmeland op loopafstand te vinden. Een bushalte is in de nabijheid te vinden. De bus brengt je in slechts 15 minuten naar station Noord van de Amsterdamse Noord-Zuidlijn.

Ben je op zoek naar een sfeervolle vrijstaande woning waar je zo in kunt trekken? Die heerlijk rustig gelegen is in het centrum van Monnickendam, maar op loopafstand van de gezelligheid en veel faciliteiten is? Neem dan snel contact op en maak een afspraak voor een vrijblijvende bezichtiging!

Bijzonderheden:
Instapklare, vrijstaande woning in binnenstad van Monnickendam
Voorzien van moderne keuken en badkamer en 2 slaapkamers
Vloerisolatie en -verwarming op de begane grond
Rustig gelegen door de verscholen ligging, op loopafstand van faciliteiten
De volgende clausules zijn van toepassing: asbest-, oudbouw en niet-bewonersclausule.
Voorbehoud verkoper: gunning en inschrijving kadaster splitsing.

Algemeen
Alle zich in deze aanbieding bevindende informatie is door ons met grote zorg samengesteld. Met betrekking tot deze informatie aanvaarden wij echter geen enkele aansprakelijkheid, noch kan aan deze informatie enig recht worden ontleend.

Kaart

Kenmerken

Overdracht

Referentienummer
00424
Vraagprijs
€ 289.000,- k.k.
Status
Verkocht
Aanvaarding
In overleg
Aangeboden sinds
Woensdag 4 juni 2025
Laatste wijziging
Woensdag 27 augustus 2025

Bouw

Type object
Woonhuis, eengezinswoning, vrijstaande woning
Soort bouw
Bestaande bouw
Bouwperiode
1999
Dakbedekking
Dakpannen
Type dak
Zadeldak
Keurmerken
Energie prestatie advies
Isolatievormen
Dakisolatie
Dubbel glas
Vloerisolatie

Oppervlaktes en inhoud

Perceeloppervlakte
94 m²
Woonoppervlakte
73,1 m²
Inhoud
258 m³

Indeling

Aantal bouwlagen
3
Aantal kamers
3 (waarvan 2 slaapkamers)
Aantal badkamers
1 (en 1 apart toilet)

Locatie

Ligging
Aan rustige weg
Dichtbij openbaar vervoer
In centrum
Nabij school

Tuin

Type
Achtertuin
Hoofdtuin
Ja
Oriëntering
Noord-oost
Heeft een achterom
Ja
Staat
Goed onderhouden

Energieverbruik

Energielabel
C

CV ketel

CV ketel
Remeha
Warmtebron
Gas
Bouwjaar
2019
Eigendom
Eigendom

Uitrusting

Warm water
CV-ketel
Verwarmingssysteem
Centrale verwarming
Vloerverwarming (gedeeltelijk)
Ventilatie methode
Mechanische ventilatie
Badkamervoorzieningen
Douche
Wastafel
Heeft kabel-tv
Ja
Tuin aanwezig
Ja
Heeft een dakraam
Ja
Heeft ventilatie
Ja

Kadastrale gegevens

Kadastrale aanduiding
Monnickendam A 4038
Perceeloppervlakte
94 m²
Omvang
Geheel perceel
Eigendomsituatie
Eigen grond
Een gratis waardebepaling van je woning

Een gratis waardebepaling van je woning

Wil je jouw woning voor de beste prijs verkopen en heb je interesse in een vrijblijvende waardebepaling? Vul dan onderstaand formulier in en wij nemen contact met je op voor een afspraak.

Gratis waardebepaling