Verkocht onder voorbehoud:Leeuwetand 77, 1141 KH Monnickendam - Foto
Verkocht onder voorbehoud
+50

Leeuwetand 77 1141 KH Monnickendam € 495.000,- k.k.

  • Woonhuis
  • 5 kamers
  • 4 slaapkamers
  • 1 badkamers
  • Bouwjaar 1989
  • 127 m² perceeloppervlakte
  • 113 m² gebruiksoppervlakte
  • A Energielabel A

Beschrijving

Is het jouw goede voornemen om dit jaar te verhuizen zonder eerst te moeten klussen? Dan is deze moderne tussenwoning aan de Leeuwetand 77 precies wat je zoekt! Deze woning, gelegen aan een autovrij straatje, voldoet aan al je behoeften: een ruime woonkamer met openslaande deuren naar de achtertuin, een moderne keuken en badkamer én vier slaapkamers, maar ook vernieuwingen als een uitgebreide meterkast met 14 groepen en Tonzon-vloerisolatie. Je kunt hooguit nog wat in je eigen favoriete kleuren schilderen, maar verder valt hier niets meer aan te doen. Wil je je goede voornemen omzetten in actie? Maak dan snel een afspraak voor een vrijblijvende bezichtiging.

Indeling begane grond
Via de hal, met 14-groeps meterkast, trapopgang en moderne toiletruimte voorzien van een fonteintje, stap je de royale woonkamer in, die is voorzien van een houten vloer en wanden en plafond in neutrale kleuren, inclusief een fraaie sierlijst. De leefruimte is aan de achterzijde gerealiseerd en heeft prettig veel lichtinval door de extra brede openslaande deuren. Je hebt hier alle ruimte voor een gezellige zit- en eethoek. Extra bergruimte gerealiseerd in de kast onder de trapopgang die vanuit de woonkamer toegankelijk is.

Aan de voorzijde ligt de moderne open keuken, met een plavuizen vloer voorzien van vloerverwarming. De keuken in L-opstelling heeft een composiet blad en is natuurlijk voorzien van moderne apparatuur, waaronder een 5-pits gasfornuis met wokbrander, vaatwasser, koelkast en combi-oven. Door het grote raam heb je altijd lekker daglicht op je werkblad en zicht op het wandelpad voor de deur.

Eerste verdieping
Op de eerste etage zijn drie slaapkamers te vinden. De grootste is aan de aan de achterzijde gelegen. De kleine kamer is momenteel in gebruik als inloopkast, maar kan ook prima als kinder- of studeerkamer dienst doen. De moderne badkamer ligt aan de voorzijde. Hier heb je je eigen spa, met een luxe jacuzzi, een ruime stortdouche voorzien van handdouche, een wastafel met meubel en een tweede toilet. Door het raam in de badkamer heb je niet alleen natuurlijk licht, maar ook goede ventilatie.

Tweede verdieping
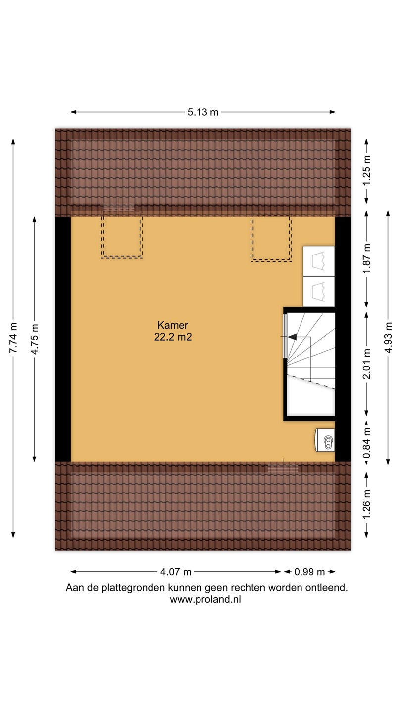
Een ruime vierde slaapkamer bevindt zich op de bovenste etage. De ruimte is geheel open en in het achterste dakvlak voorzien van 2 Velux kantelramen. Het is mogelijk deze kamer te vergroten door middel van dakkapellen aan zowel de voor- als achterzijde. Achter de knieschotten en boven de trapopgang is ruimte om spullen op te slaan en direct ernaast is er plek voor de wasmachine en droger. Hier hangt ook de Cv-installatie (Intergas, 2016).

Buiten
De woning is aan de voorzijde gelegen aan een rustig wandelpad. Parkeren kan hier aan de zijkant van het huizenblok op het centrale parkeerterrein. Groot voordeel is dat kinderen daardoor ongehinderd door verkeer voor de deur kunnen spelen. De voortuin op het zuidoosten is grotendeels bestraat en voorzien van groene borders. De achtertuin ligt op het noordwesten. Daardoor heb je zon tot de laatste stralen. Ook de achtertuin is onderhoudsarm: grotendeels bestraat en voorzien van groene afscheidingsborders tussen de twee terrassen. Achterin de tuin staat een stenen berging voorzien van elektra. De poort komt uit op de achtergelegen steeg.

Omgeving
Deze leuke tussenwoning is gelegen in de Buitengouw, een rustige en kindvriendelijke woonwijk. Door de ligging aan een wandelpad woon je hier heerlijk rustig. Faciliteiten als winkelcentrum, bibliotheek, sportschool, zorgverleners en scholen zijn in de nabijheid te vinden. De bus brengt je bovendien in 15 minuten naar Amsterdam-Noord waar de Noord-Zuidlijn je in een mum van tijd verder de stad in brengt. Het oude centrum van Monnickendam is goed per fiets te bereiken. Hier vindt je de handige wekelijkse warenmarkt op zaterdag, diverse lekkere restaurants en gezellige terrasjes.

Wil je dus dit jaar verhuizen, maar vooral bezig zijn met dozen uitpakken en inrichten? En vooral niet met klussen of verbouwen? Kom dan snel een kijkje nemen en maak een afspraak voor een vrijblijvende bezichtiging!

Bijzonderheden:
Zeer goed onderhouden tussenwoning met 4 slaapkamers
Moderne keuken en badkamer
Voorzien van 14-groeps meterkast en Tonzon-vloerisolatie
Aan wandelpad in rustige en kindvriendelijke woonwijk
Op 15 busminuten van de Amsterdamse Noord-Zuidlijn

Algemeen
Alle zich in deze aanbieding bevindende informatie is door ons met grote zorg samengesteld. Met betrekking tot deze informatie aanvaarden wij echter geen enkele aansprakelijkheid, noch kan aan deze informatie enig recht worden ontleend.

Kaart

Kenmerken

Overdracht

Referentienummer
00454
Vraagprijs
€ 495.000,- k.k.
Status
Verkocht onder voorbehoud
Aanvaarding
In overleg
Aangeboden sinds
Vrijdag 16 januari 2026
Laatste wijziging
Zaterdag 7 februari 2026

Bouw

Type object
Woonhuis, eengezinswoning, tussenwoning
Soort bouw
Bestaande bouw
Bouwperiode
1989
Dakbedekking
Dakpannen
Type dak
Zadeldak
Isolatievormen
Dakisolatie
Dubbel glas
HR-glas
Muurisolatie
Vloerisolatie

Oppervlaktes en inhoud

Perceeloppervlakte
127 m²
Woonoppervlakte
113 m²
Inhoud
395 m³
Oppervlakte externe bergruimte
6,3 m²

Indeling

Aantal bouwlagen
3
Aantal kamers
5 (waarvan 4 slaapkamers)
Aantal badkamers
1 (en 1 apart toilet)

Locatie

Ligging
Aan rustige weg
Dichtbij openbaar vervoer
In woonwijk
Nabij school

Tuin

Type
Achtertuin
Hoofdtuin
Ja
Oriëntering
Noord west
Heeft een achterom
Ja
Staat
Goed onderhouden
Tuin 2 - Type
Achtertuin
Tuin 2 - Oriëntering
Zuidoost
Tuin 2 - Staat
Goed onderhouden

Energieverbruik

Energielabel
A

CV ketel

CV ketel
Intergas
Warmtebron
Gas
Bouwjaar
2016
Eigendom
Eigendom

Uitrusting

Warm water
CV-ketel
Verwarmingssysteem
Centrale verwarming
Vloerverwarming (gedeeltelijk)
Ventilatie methode
Mechanische ventilatie
Keukenvoorzieningen
Inbouwapparatuur
Badkamervoorzieningen
Douche
Jacuzzi
Toilet
Vloerverwarming
Wastafelmeubel
Tuin aanwezig
Ja
Heeft schuur/berging
Ja
Heeft een dakraam
Ja
Heeft zonwering
Ja
Heeft ventilatie
Ja

Kadastrale gegevens

Kadastrale aanduiding
Monnickendam E 2781
Perceeloppervlakte
127 m²
Omvang
Geheel perceel
Eigendomsituatie
Eigen grond
Een gratis waardebepaling van je woning

Een gratis waardebepaling van je woning

Wil je jouw woning voor de beste prijs verkopen en heb je interesse in een vrijblijvende waardebepaling? Vul dan onderstaand formulier in en wij nemen contact met je op voor een afspraak.

Gratis waardebepaling