Verkocht onder voorbehoud:Noordeinde 116, 1141 AR Monnickendam - Foto
Verkocht onder voorbehoud
+53

Noordeinde 116 1141 AR Monnickendam € 550.000,- k.k.

  • Woonhuis
  • 4 kamers
  • 3 slaapkamers
  • 1 badkamers
  • Bouwjaar 1984
  • 74 m² perceeloppervlakte
  • 81 m² gebruiksoppervlakte
  • C Energielabel C

Beschrijving

Zin om te verhuizen naar een moderne woning in historische setting? Aan het Noordeinde 116, in hartje Monnickendam, is nu dit fraaie huis te koop. In de afgelopen maanden is deze woning op veel punten verbeterd. Zo zijn er nieuwe kozijnen met hr++ glas in de achtergevel geplaatst, zijn er openslaande deuren naar de tuin gemaakt, is het volledige interieur opnieuw gestuukt, is de meterkast vernieuwd, zijn alle stopcontacten geaard en zijn er radiatoren vernieuwd. Dit huis met fijne stadstuin ligt aan één van de oudste straten van Monnickendam, heeft een moderne keuken en badkamer en telt 3 slaapkamers.

Op zoek naar een instapklare woning waar je direct je jas op kunt hangen? Maak dan snel een afspraak voor een vrijblijvende bezichtiging!

Indeling begane grond
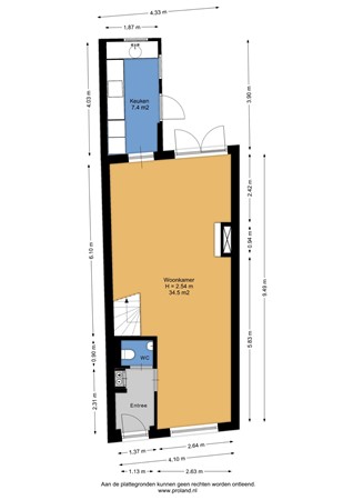
Via de hal met meterkast en toiletruimte, met zwevend toilet en fonteintje, betreed je de woonkamer van circa 9,5 meter diep, met nieuwe openslaande deuren naar de achtertuin. Een heerlijk ruim vloeroppervlak, met houten vloer, biedt voldoende mogelijkheid om de woonkamer naar eigen wens in te delen. Een gashaard met marmeren schouw zorgt voor extra sfeer en warmte. Wanden en plafond zijn wit gestuukt. In de uitbouw bevindt zich de moderne semi-open keuken, voorzien van diverse inbouwapparatuur, waaronder een vaatwasser (2025), inductie kookplaat en oven. Dit jaar zijn er extra opberglades aan de keuken toegevoegd. Bovenop de uitbouw bevindt zich nog een vliering, waar de Cv-ketel (Intergas, 2017) te vinden is. Via de uitbouw stap je ook de gezellige stadstuin in.

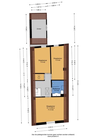
Eerste verdieping
Via de open trap in de woonkamer bereik je de eerste etage. Op deze verdieping zijn drie slaapkamers en een badkamer te vinden. De slaapkamer aan de voorzijde van de woning is de grootste van de drie en voelt extra ruimtelijk door de hoogte tot aan de nok. Aan de achterzijde bevinden zich de twee andere slaapkamers van ongeveer gelijk formaat, beide voorzien van rolluiken. In één van deze kamers is een extra wastafel geplaatst.

De gehele etage is voorzien van een plankenvloer. De moderne badkamer met Velux kantelraam is centraal aan de overloop gelegen. Het is een frisse en tot aan het plafond betegelde ruimte die in wit/grijs is uitgevoerd en voorzien is van inloopdouche, wastafel en tweede toilet. Op de overloop bevindt zich een vaste kast met aansluiting voor wasmachine en droger. Een vlizotrap op de overloop biedt tot slot toegang tot de vliering.

Buiten
Je bereikt de voordeur via je eigen stoep aan de straatzijde op de westkant. De kozijnen aan de voor- en achterzijde van de woning zijn ook recent vernieuwd en voorzien van HR+ glas. Aan de achterzijde is de heerlijke stadstuin te vinden, die gelegen is op het oosten. Het zonnetje zorgt gedurende de dag voor lekkere zon- en schaduwplekjes.

Omgeving
Deze woning ligt in de historische binnenstad van Monnickendam, met cafés, restaurants en sfeervolle terrasjes binnen handbereik. Op zaterdagen vindt er aan het begin van deze straat een gezellige warenmarkt plaats. In de nabije omgeving zijn diverse faciliteiten, zoals een school, sportschool en diverse winkels te vinden. Bovendien stap je vlakbij op de bus die je in een kwartiertje naar de metrohalte van de Noord-Zuidlijn van Amsterdam brengt.

Ben je op zoek naar een moderne woning in hartje Monnickendam, die klaar is om te betrekken? Maak dan zeker een vrijblijvende afspraak voor een bezichtiging!

Bijzonderheden:
Moderne woning met 3 slaapkamers in binnenstad van Monnickendam
Voorzien van moderne keuken, nieuwe badkamer en gezellige stadstuin
Recent aan de voor- en achterzijde voorzien van nieuwe kozijnen met HR+ glas
In 2025 op veel punten verbeterd
Centraal gelegen nabij alle faciliteiten

Algemeen
Alle zich in deze aanbieding bevindende informatie is door ons met grote zorg samengesteld. Met betrekking tot deze informatie aanvaarden wij echter geen enkele aansprakelijkheid, noch kan aan deze informatie enig recht worden ontleend.

Kaart

Kenmerken

Overdracht

Referentienummer
00442
Vraagprijs
€ 550.000,- k.k.
Inrichting
Niet gestoffeerd
Inrichting
Niet gemeubileerd
Status
Verkocht onder voorbehoud
Aanvaarding
In overleg
Aangeboden sinds
Vrijdag 31 oktober 2025
Laatste wijziging
Maandag 17 november 2025

Bouw

Type object
Woonhuis, eengezinswoning, tussenwoning
Soort bouw
Bestaande bouw
Bouwperiode
1984
Dakbedekking
Dakpannen
Type dak
Zadeldak
Isolatievormen
Dakisolatie
Gedeeltelijk dubbel glas
HR-glas
Muurisolatie
Spouwmuren
Vloerisolatie

Oppervlaktes en inhoud

Perceeloppervlakte
74 m²
Woonoppervlakte
81,4 m²
Inhoud
316 m³
Oppervlakte overige inpandige ruimten
9,5 m²
Oppervlakte externe bergruimte
6 m²

Indeling

Aantal bouwlagen
3
Aantal kamers
4 (waarvan 3 slaapkamers)
Aantal badkamers
1 (en 1 apart toilet)

Locatie

Ligging
Dichtbij openbaar vervoer
In centrum
Nabij school

Tuin

Type
Achtertuin
Hoofdtuin
Ja
Oriëntering
Zuidoost
Staat
Goed onderhouden

Energieverbruik

Energielabel
C

CV ketel

CV ketel
Intergas
Warmtebron
Gas
Bouwjaar
2018
Combiketel
Ja
Eigendom
Eigendom

Uitrusting

Warm water
CV-ketel
Verwarmingssysteem
Centrale verwarming
Gashaard
Ventilatie methode
Mechanische ventilatie
Badkamervoorzieningen
Douche
Ligbad
Toilet
Wastafel
Heeft kabel-tv
Ja
Heeft een rookkanaal
Ja
Glasvezelaansluiting aanwezig
Ja
Tuin aanwezig
Ja
Telefoonaansluiting aanwezig
Ja
Heeft rolluiken
Ja
Heeft een dakraam
Ja
Heeft ventilatie
Ja

Kadastrale gegevens

Kadastrale aanduiding
Monnickendam A 3338
Perceeloppervlakte
74 m²
Omvang
Geheel perceel
Eigendomsituatie
Eigen grond
Een gratis waardebepaling van je woning

Een gratis waardebepaling van je woning

Wil je jouw woning voor de beste prijs verkopen en heb je interesse in een vrijblijvende waardebepaling? Vul dan onderstaand formulier in en wij nemen contact met je op voor een afspraak.

Gratis waardebepaling