Verkocht onder voorbehoud:Noordeinde 34, 1141 AM Monnickendam - Foto
Verkocht onder voorbehoud
+50

Noordeinde 34 1141 AM Monnickendam € 798.000,- k.k.

  • Woonhuis
  • 4 kamers
  • 3 slaapkamers
  • 1 badkamers
  • Bouwjaar 1886
  • 129 m² perceeloppervlakte
  • 122 m² gebruiksoppervlakte
  • B Energielabel B

Beschrijving

Achter de historische gevel van het Noordeinde 34 in Monnickendam is een compleet nieuw woonhuis met authentieke elementen ontstaan. Waar korbelen en oude afgebikte muren behouden zijn gebleven, zijn comfort, licht en ruimte toegevoegd. De woning is recent voorzien van vloerisolatie en -verwarming, heeft op de begane grond een lichte pvc-vloer in visgraatmotief en heeft geïsoleerde wanden, nieuwe leidingen en nieuw elektra. De woning met een prachtige gevelsteen ‘In de Dolfyn’ is grotendeels voorzien van HR glas en het dak is aan de buitenzijde grotendeels geïsoleerd. Het huis, met royale moderne woonkeuken en een nieuwe badkamer, telt 3 slaapkamers en is klaar om te betrekken. Ben jij de nieuwe bewoner? Maak dan snel een afspraak voor een vrijblijvende bezichtiging!

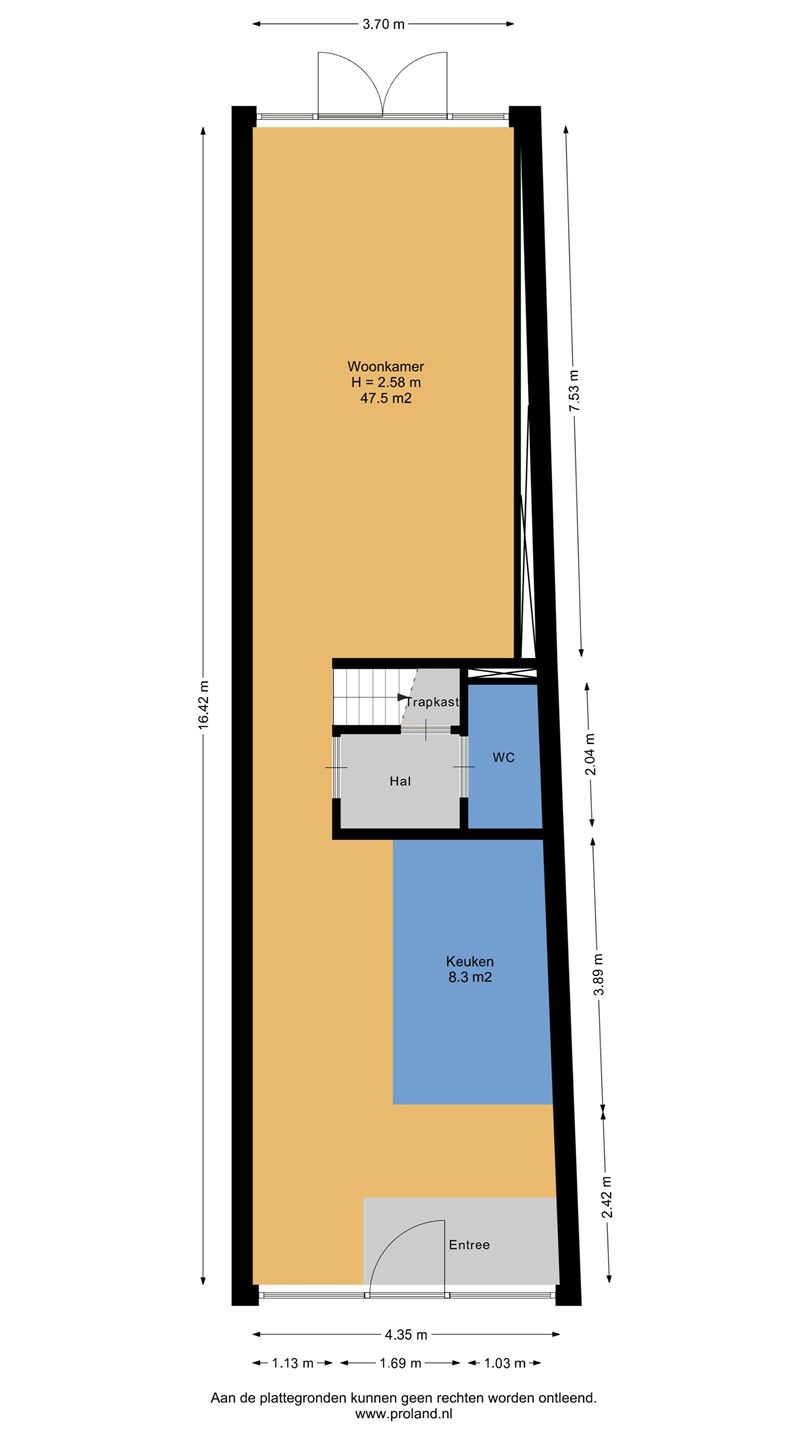
Indeling begane grond
Vanaf de eerste stap in deze woning kom je ogen tekort. Is het de mooie visgraat pvc-vloer die je aandacht trekt, zijn het de prachtige authentieke houten korbelen of worden je ogen getrokken naar de fraaie oude muren, die met een slim lichtplan worden uitgelicht? Hoe dan ook: door de grote raampartij aan de voorzijde, met de entreedeur in het midden van de gevel, is de ruimte heerlijk licht. De royale en moderne wandkeuken is voorzien van diverse inbouwapparatuur. Zet er een lange tafel met stoelen neer en je kunt elke avond heerlijk aanschuiven met familie of vrienden in deze heerlijke woonkeuken.

De begane grond is slim opgedeeld in twee delen, door in een tussengedeelte een vaste trap naar de eerste verdieping te realiseren, met onder de trap het moderne toilet met wastafelmeubel. Aan de achterzijde bevindt zich de woonkamer, die extra veel lichtinval heeft door de gerealiseerde lichtstraat. Ook zijn hier recent openslaande deuren naar de achtertuin geplaatst.

Eerste en tweede verdieping
De overloop op de eerste etage heeft daglicht dankzij de dakramen en ook hier is de combinatie van oud met nieuw mooi zichtbaar. Ook op deze etage is het comfortabel dankzij vloerverwarming onder de houtlook vloer. Vanaf de overloop bereik je alle vertrekken. De ouderslaapkamer is gelegen aan de rustige achterzijde. De fraaie dakconstructie is hier in het zicht gelaten. Aan de voorzijde bevinden zich 2 ruime slaapkamers, waarvan één met een verrassende trap naar de nokverdieping. Hierdoor is een mooie extra ruimte gecreëerd: een leuke slaapplek of speelplek voor de kinderen. Hier is ook de Cv-ketel te vinden (Intergas, 2025). De moderne badkamer heeft een royale inloopdouche, dubbele wastafel en een tweede toilet. Tot slot is er aan de overloop nog een wasruimte gerealiseerd, met aansluiting voor wasmachine en droger.

Buiten
Aan de voorzijde scheidt je eigen stoep je van de straat. Parkeren kan hier (met vergunning) voor de deur. De diepe achtertuin op het oosten biedt door de ligging vanaf de ochtend tot eind van de middag zon. Een nieuwe schutting is recent geplaatst en de tuin is deels voorzien van een nieuwe vlonder direct aan het huis. De tuin is via de naastgelegen Brugstraat achterom bereikbaar.

Omgeving
Deze woning ligt in het hart van Monnickendam, met cafés, restaurant en sfeervolle terrasjes binnen handbereik. Op zaterdagen vindt voor de deur een gezellige warenmarkt plaats voor al je verse weekboodschappen. In de nabije omgeving zijn diverse faciliteiten, zoals een school, sportschool en winkels te vinden. Bovendien stap je vlakbij op de bus die je in 15 minuten naar station Noord van de Amsterdamse Noord-Zuidlijn brengt.

Houd jij van modern wonen in een historisch jasje? En heb je geen zin om zelf te verbouwen? Maak dan snel een afspraak voor een vrijblijvende bezichtiging van deze moderne woning met authentieke elementen in de binnenstad van Monnickendam!

Bijzonderheden:
Modern wonen in historisch jasje met behoud van authentieke elementen
Voorzien van vloer-, muur en dakisolatie, vloerverwarming en HR-glas
Moderne keuken, badkamer en 3 slaapkamers
Diepe achtertuin met achterom
Centrale locatie met markt voor de deur en horeca binnen handbereik

Algemeen
Oudbouw-clausule is van toepassing. Alle zich in deze aanbieding bevindende informatie is door ons met grote zorg samengesteld. Met betrekking tot deze informatie aanvaarden wij echter geen enkele aansprakelijkheid, noch kan aan deze informatie enig recht worden ontleend.

Kaart

Kenmerken

Overdracht

Referentienummer
00431
Vraagprijs
€ 798.000,- k.k.
Status
Verkocht onder voorbehoud
Aanvaarding
In overleg
Aangeboden sinds
Woensdag 5 november 2025
Laatste wijziging
Vrijdag 12 december 2025

Bouw

Type object
Woonhuis, herenhuis, half vrijstaande woning
Soort bouw
Bestaande bouw
Bouwperiode
1886
Dakbedekking
Dakpannen
Type dak
Samengesteld
Isolatievormen
Dakisolatie
Gedeeltelijk dubbel glas
Muurisolatie

Oppervlaktes en inhoud

Perceeloppervlakte
129 m²
Woonoppervlakte
121,5 m²
Inhoud
467 m³
Oppervlakte overige inpandige ruimten
6,6 m²

Indeling

Aantal bouwlagen
3
Aantal kamers
4 (waarvan 3 slaapkamers)
Aantal badkamers
1 (en 1 apart toilet)

Locatie

Ligging
Aan rustige weg
Dichtbij openbaar vervoer
In centrum
Nabij school

Tuin

Type
Achtertuin
Hoofdtuin
Ja
Oriëntering
Oosten
Heeft een achterom
Ja
Staat
Normaal

Energieverbruik

Energielabel
B

CV ketel

CV ketel
Intergas
Warmtebron
Gas
Bouwjaar
2025
Eigendom
Eigendom

Uitrusting

Warm water
CV-ketel
Verwarmingssysteem
Gaskachels
Vloerverwarming
Badkamervoorzieningen
Dubbele wastafel
Inloopdouche
Toilet
Vloerverwarming
Heeft kabel-tv
Ja
Heeft een rookkanaal
Ja
Tuin aanwezig
Ja
Heeft een dakraam
Ja
Heeft zonwering
Ja

Kadastrale gegevens

Kadastrale aanduiding
Monnickendam A 3984
Perceeloppervlakte
129 m²
Omvang
Geheel perceel
Eigendomsituatie
Eigen grond
Een gratis waardebepaling van je woning

Een gratis waardebepaling van je woning

Wil je jouw woning voor de beste prijs verkopen en heb je interesse in een vrijblijvende waardebepaling? Vul dan onderstaand formulier in en wij nemen contact met je op voor een afspraak.

Gratis waardebepaling