+102

Noordeinde 46 1141 AN Monnickendam € 675.000,- k.k.

  • Woonhuis
  • 4 kamers
  • 3 slaapkamers
  • 1 badkamer
  • Bouwjaar 1850
  • 245 m² perceeloppervlakte
  • 239 m² gebruiksoppervlakte
  • Gemeubileerd
  • C Energielabel C

Beschrijving

NOORDEINDE 46 met bovenwoning aan de OUDE STEEG 2 te Monnickendam.

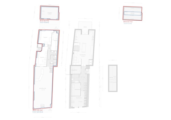
HET GEHELE PAND HEEFT EEN TOTALE OPPERVLAKTE VAN 238,5 M2
HET RESTAURANT HEEFT EEN OPPERVLAKTE VAN 143,1 M2, DE ZELFSTANDIGE BOVENWONING HEEFT EEN WOONOPPERVLAKTE VAN 95,4 M2

Ben je op zoek naar een mooi beleggingsobject met bovenwoning voor eigen gebruik en adres?
Noordeinde 46 heeft een horecabestemming heeft een bvo oppervlakte van 143m2 met energielabel B in verhuurde staat.

De bovenwoning Oude Steeg 2 heeft een woonbestemming 95 m2 en heeft energielabel C.
In de achtergelegen tuin bevindt zich een zelfstandige bijgebouw eigen cv-ketel, water en elektra (krachtstroom).
De bovenwoning telt 3 slaapkamers, heeft een moderne badkamer en keuken.
Wil je meer weten over alle mogelijkheden? Neem dan snel contact op voor een vrijblijvende bezichtiging!

Eerste verdieping (woongedeelte)
De woning op de eerste verdieping heeft een eigen adres en opgang, via de Oude Steeg 2, aan de zijkant van het pand. Via het trappenhuis kom je uit in de woonkamer met grote dakkoepels voor extra daglicht. In de woonkamer is ruimte voor een gezellige zit- en eethoek bij de openslaande deuren die uitkomen op het dakterras dat op het oosten gelegen is. De moderne semi-open L-vormige keuken voorziet in diverse inbouwapparatuur. Plafond en wanden zijn strak wit gestuukt en de ruimte is voorzien van airconditioning.

Een trapje brengt je in het voorste deel van het pand. Hier aan de overloop zijn drie slaapkamers te vinden. De grootste slaapkamer is gelegen aan de voorkant met zicht op het Noordeinde. Op de overloop en voorslaapkamer zijn praktische opbergkasten gerealiseerd. In één van deze kasten zijn wasmachine, droger en Cv-ketel uit het zicht weggewerkt. Ook is hier een separaat toilet met fonteintje gerealiseerd. De moderne badkamer is voorzien van dubbel wastafelmeubel, ruime inloopdouche en tweede toilet. Aan de overloop is tot slot een werkplek gerealiseerd en een vlizotrap geeft toegang tot de bovengelegen zolder.

Indeling begane grond (horeca)
De gehele begane grond van het Noordeinde 46 is gewijd aan het horeca-etablissement. Aan de voorzijde kom je na het tochtportaal in het praktisch bemeten restaurantgedeelte met bar. In de achterliggende hal vind je kastruimte, de toiletgroep, de uitgebreide keuken en de spoelkeuken. Het horecagedeelte is thans verhuurd.

Buiten
Aan de voorzijde van Noordeinde 46, aan de westkant, is een brede stoep waar het mogelijk is om een aantal tafeltjes te plaatsen. Parkeren kan hier gratis (blauwe zone) in de straat. De achtergelegen tuin op het oosten, aan de Oude Steeg, is momenteel in gebruik door het restaurant en bereikbaar via de steeg. Achterin deze tuin is een vrijstaande stenen berging te vinden die is voorzien van cv-ketel, wateraansluiting en krachtstroom welke bij de boven woning hoort.

Omgeving
Dit pand, waar horeca en wonen gecombineerd kan worden, ligt in het hart van Monnickendam, aan één van de doorgaande straten. Op zaterdagen vindt aan deze straat ook een gezellige warenmarkt plaats. In de nabije omgeving zijn diverse faciliteiten, zoals een school, sportschool en andere horeca te vinden. Bovendien stap je vlak bij op de bus die je in 15 minuten naar station Noord van de Amsterdamse Noord-Zuidlijn brengt.

Ben je op zoek naar een mooi beleggingspand met een eigen bovenwoning? Maak dan zeker een afspraak voor een vrijblijvende bezichtiging van dit multifunctionele pand in Monnickendam!

Bijzonderheden:
Mooi beleggings pand met bovengelegen woning voor eigen gebruik op één locatie
De horeca wordt thans verhuurd
Woning voorzien van moderne keuken en badkamer en 3 slaapkamers
Mogelijkheid voor B&B in het bijgebouw
Ideale ligging in het hartje van Monnickendam

Algemeen
Alle zich in deze aanbieding bevindende informatie is door ons met grote zorg samengesteld. Met betrekking tot deze informatie aanvaarden wij echter geen enkele aansprakelijkheid, noch kan aan deze informatie enig recht worden ontleend.

Kaart

Kenmerken

Overdracht

Referentienummer
00437
Vraagprijs
€ 675.000,- k.k.
Inrichting
Optioneel
Aanvaarding
In overleg
Aangeboden sinds
Donderdag 11 september 2025
Laatste wijziging
Dinsdag 24 maart 2026

Bouw

Type object
Woonhuis, herenhuis, vrijstaande woning
Soort bouw
Bestaande bouw
Bouwperiode
1850
Dakbedekking
Bitumen
Dakpannen
Type dak
Zadeldak
Isolatievormen
Dakisolatie
Dubbel glas
HR-glas

Oppervlaktes en inhoud

Perceeloppervlakte
245 m²
Woonoppervlakte
238,5 m²
Inhoud
497 m³
Oppervlakte externe bergruimte
23,3 m²
Oppervlakte gebouwgebonden buitenruimte
12,3 m²

Indeling

Aantal bouwlagen
3
Aantal kamers
4 (waarvan 3 slaapkamers)
Aantal badkamers
1 (en 1 apart toilet)

Locatie

Ligging
Aan rustige weg
Dichtbij openbaar vervoer
In centrum
Nabij school

Tuin

Type
Achtertuin
Hoofdtuin
Ja
Oriëntering
Oosten
Heeft een achterom
Ja
Staat
Goed onderhouden

Energieverbruik

Energielabel
C

CV ketel

CV ketel
Intergas
Warmtebron
Gas
Eigendom
Eigendom

Uitrusting

Warm water
CV-ketel
Verwarmingssysteem
Airconditioning
Centrale verwarming
Ventilatie methode
Mechanische ventilatie
Badkamervoorzieningen
Douche
Dubbele wastafel
Toilet
Wastafelmeubel
Heeft airco
Ja
Heeft kabel-tv
Ja
Tuin aanwezig
Ja
Telefoonaansluiting aanwezig
Ja
Heeft schuur/berging
Ja
Heeft een dakraam
Ja
Heeft ventilatie
Ja

Kadastrale gegevens

Kadastrale aanduiding
Waterland A 2903
Perceeloppervlakte
245 m²
Omvang
Geheel perceel
Eigendomsituatie
Eigen grond
Een gratis waardebepaling van je woning

Een gratis waardebepaling van je woning

Wil je jouw woning voor de beste prijs verkopen en heb je interesse in een vrijblijvende waardebepaling? Vul dan onderstaand formulier in en wij nemen contact met je op voor een afspraak.

Gratis waardebepaling