Verkocht:Noordeinde 73, 1141 AH Monnickendam - Foto
Verkocht
+51

Noordeinde 73 1141 AH Monnickendam

  • Woonhuis
  • 3 kamers
  • 2 slaapkamers
  • 1 badkamers
  • Bouwjaar 1750
  • 110 m² perceeloppervlakte
  • 82 m² gebruiksoppervlakte
  • Gestoffeerd
  • D Energielabel D

Beschrijving

Aan één van de oudste straten van Monnickendam, aan het Noordeinde om precies te zijn, staat op nummer 73 een in 2017 volledig gerenoveerde woning met geïsoleerde vloer en wanden. Het huis, met heerlijke stadstuin op het westen, is klaar om snel te betrekken. Wil je wonen in de reuring van het centrum van Monnickendam, maar heb je geen zin om te klussen? Dan is dit je kans. Maak dan snel een afspraak voor een vrijblijvende bezichtiging!

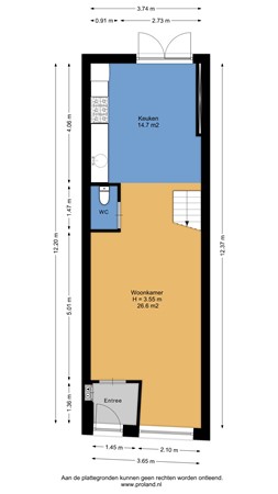
Indeling begane grond
Het knusse portiek achter de groene voordeur biedt beschutting bij het betreden van de woning. Daarna valt direct de hoogte van de achterliggende woonruimte op. Het plafond is hier 3.60 meter hoog zijn de wanden strak gestuukt. Het is een mooi contrast met de donkere balken. De gehele begane grond is voorzien van vloerverwarming onder grote vloertegels voor extra comfort. Na een ruime zithoek loop je langs de open trap door naar de achterzijde van de woning, waar een open keuken met diverse inbouwapparatuur, waaronder een 6-pits gasfornuis met oven van Boretti, te vinden is. Bij de nieuwe openslaande deuren is ruimte om gezellig samen te komen aan de eettafel. De toiletruimte met fonteintje bevindt zich centraal tussen de woonkamer en open keuken.

Eerste verdieping
Via de open trap in de woonkamer bereik je de overloop op de eerste etage. Zowel aan de voorzijde als achterzijde is een slaapkamer van ongeveer gelijke grootte gelegen onder het schuine dak. De slaapkamer aan de achterzijde herbergt de C.v.-installatie (Atag, 2018) in een kast. Aan de overloop is een berging waar de wasmachine en droger een plek vinden. De gehele etage is voorzien van een houtlook laminaatvloer. De moderne badkamer met nieuw dakkapel is in het midden van de eerste verdieping te vinden en beschikt over een ruime inloopdouche, wastafel met meubel en tweede toilet. Een vlizotrap biedt tot slot toegang tot de bergzolder.

Buiten
Aan de voorzijde scheidt een eigen stoep je van de straat. Parkeren kan hier direct voor de deur. De achtertuin is gelegen op het westen, waardoor je er in de middag en avond heerlijk kunt genieten tot de zon ondergaat. Je bereikt de tuin via de openslaande deuren, er is geen achterom. De tuin is, exclusief overkapping, bijna 30m² groot en is voorzien van een groot bestraat terras en een groen gedeelte. De nieuwgebouwde overkapping achterin de tuin is de ideale plek om het tuinseizoen te verlengen en biedt ruimte aan een royale loungeset. Direct ernaast is een berging voor de opslag van tuinmeubilair en kussens.

Omgeving
Deze woning ligt in het hart van Monnickendam, met cafés, restaurants en sfeervolle terrasjes binnen handbereik. Op zaterdagen vindt aan het begin van deze straat een gezellige warenmarkt plaats. In de nabije omgeving zijn diverse faciliteiten, zoals een school, sportschool en winkels te vinden. Bovendien stap je vlak bij op de bus die je in 15 minuten naar metrostation noord van de Amsterdamse Noord-Zuidlijn brengt.

Ben je op zoek naar een sfeervolle, moderne woning in de binnenstad van Monnickendam waarin je niet meer hoeft te klussen? Zoek dan niet verder en maak een vrijblijvende afspraak voor een bezichtiging!

Bijzonderheden:
Sfeervolle, moderne woning met authentieke details
Hartje centrum Monnickendam
Achtertuin op het westen met overkapping
Geheel gerenoveerd en voorzien van vloer- en muurisolatie

Algemeen
Alle zich in deze aanbieding bevindende informatie is door ons met grote zorg samengesteld. Met betrekking tot deze informatie aanvaarden wij echter geen enkele aansprakelijkheid, noch kan aan deze informatie enig recht worden ontleend.

Kaart

Kenmerken

Overdracht

Referentienummer
00426
Vraagprijs
€ 519.000,- k.k.
Inrichting
Ja
Inrichting
Gestoffeerd
Status
Verkocht
Aanvaarding
In overleg
Aangeboden sinds
Dinsdag 10 juni 2025
Laatste wijziging
Zaterdag 13 september 2025

Bouw

Type object
Woonhuis, eengezinswoning, vrijstaande woning
Soort bouw
Bestaande bouw
Bouwperiode
1750
Dakbedekking
Dakpannen
Type dak
Zadeldak
Isolatievormen
Dakisolatie
Grotendeels dubbel glas
HR-glas
Muurisolatie
Vloerisolatie

Oppervlaktes en inhoud

Perceeloppervlakte
110 m²
Woonoppervlakte
82,3 m²
Inhoud
352 m³
Oppervlakte externe bergruimte
3,3 m²

Indeling

Aantal bouwlagen
3
Aantal kamers
3 (waarvan 2 slaapkamers)
Aantal badkamers
1 (en 1 apart toilet)

Locatie

Ligging
Aan rustige weg
Dichtbij openbaar vervoer
In centrum
Nabij school

Tuin

Type
Achtertuin
Hoofdtuin
Ja
Oriëntering
West
Staat
Goed onderhouden

Energieverbruik

Energielabel
D

CV ketel

CV ketel
Atag
Warmtebron
Gas
Bouwjaar
2018
Eigendom
Eigendom

Uitrusting

Warm water
CV-ketel
Verwarmingssysteem
Centrale verwarming
Vloerverwarming
Ventilatie methode
Mechanische ventilatie
Keukenvoorzieningen
Inbouwapparatuur
Badkamervoorzieningen
Inloopdouche
Toilet
Vloerverwarming
Wastafelmeubel
Heeft kabel-tv
Ja
Tuin aanwezig
Ja
Heeft schuur/berging
Ja
Heeft een dakraam
Ja
Heeft ventilatie
Ja

Kadastrale gegevens

Kadastrale aanduiding
Monnickendam A 3443
Perceeloppervlakte
110 m²
Omvang
Geheel perceel
Eigendomsituatie
Eigen grond
Een gratis waardebepaling van je woning

Een gratis waardebepaling van je woning

Wil je jouw woning voor de beste prijs verkopen en heb je interesse in een vrijblijvende waardebepaling? Vul dan onderstaand formulier in en wij nemen contact met je op voor een afspraak.

Gratis waardebepaling