Verkocht:Pieter Appelplein 41, 1141 XP Monnickendam - Foto
Verkocht
+55

Pieter Appelplein 41 1141 XP Monnickendam

  • Woonhuis
  • 4 kamers
  • 3 slaapkamers
  • 2 badkamers
  • Bouwjaar 1965
  • 137 m² perceeloppervlakte
  • 113 m² gebruiksoppervlakte
  • C Energielabel C

Beschrijving

Voor deze tussenwoning aan het Pieter Appelplein 41 geldt: uitpakken en wonen. Hier is al het werk al voor je gedaan, van vloer-, dak- en spouwisolatie tot houten kozijnen met dubbel glas, 9 zonnepanelen en zelfs een nokverhoging waardoor er een volwaardige tweede etage gerealiseerd is. Met een moderne keuken in de aanbouw, 3 slaapkamers, 2 badkamers, een heerlijke achtertuin én de mogelijkheid om een garagebox bij te kopen, is deze woning klaar voor nieuwe bewoners. Zie jij jezelf hier al wonen? Maak dan snel een afspraak voor een vrijblijvende bezichtiging!

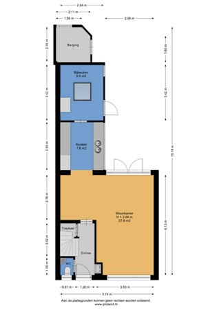
Begane grond
Via de hal, met toegang tot de meterkast, toiletruimte met fonteintje, trapopgang en trapkast, betreed je de woonkamer die, mede door de openslaande deuren aan de achterzijde, extra veel lichtinval heeft. De wanden en het plafond zijn strak gestuukt in lichte tinten en op de vloer ligt een pvc vloer in visgraatmotief. Aan de voorzijde is de straatgerichte zithoek gerealiseerd. Daarachter, bij de tuindeuren, is ruimte voor een eethoek met een logische doorloop naar de moderne keuken in de uitbouw. Deze keuken, in tweezijdige wandopstelling, beschikt over een dubbele spoelbak en diverse inbouwapparatuur waaronder een vaatwasser, oven en elektrische kookplaat met geïntegreerde afzuiging. Vanuit de keuken stap je de verwarmde bijkeuken in, die is voorzien van een lichtkoepel en toegang biedt tot de achtertuin.

Eerste etage
Op de eerste verdieping zijn twee slaapkamers te vinden, beide voorzien van een rolluik. De voormalige badkamer biedt nu ruimte aan een tweede toilet en de aansluiting voor wasmachine en droger. In de kleinste slaapkamer aan de achterzijde is een moderne badkamer gerealiseerd die is voorzien van vloerverwarming, wastafelmeubel, douche en jacuzzi.

Tweede etage
Door een dakopbouw en dakkappellen met rolluiken, aan de voor- en achterzijde van het huis, is er flink extra ruimte op de tweede verdieping gecreëerd, die bereikbaar is via een vaste trap. Vanaf de overloop met dakraam betreedt je de derde slaapkamer, met een badkamer en suite, voorzien van derde toilet en douche, en een wastafel in de slaapkamer zelf. Deze kamer is niet alleen voorzien van rolluiken in beide dakkapellen, maar ook van airco. Achter de knieschotten is ruimte voor het opbergen van je spullen.

Buiten
De voortuin is van de weg afgescheiden door een voetpad, groenstrook en parkeervakken. Deze tuin op het westen is keurig bestraat en voorzien van een groene border. Een zonnescherm biedt bescherming tegen de middag- en avondzon. De achtertuin is bereikbaar via de achterliggende steeg en achterom. De tuin op het oosten biedt al vroeg op de dag zon en vanwege de ligging is er de hele dag wel een plekje in de zon of schaduw te vinden. Deze tuin is grotendeels bestraat met wat kleine borders en beschikt over een pergola. Er staat een houten berging om de fietsen droog in weg te zetten. Wie op zoek is naar meer ruimte kan optioneel de separate garage, op steenworp afstand van de woning, bijkopen.

Omgeving
Het Pieter Appelplein is een rustig gelegen plein dat recent opnieuw is ingericht en voldoende gratis parkeergelegenheid biedt. Op het plein is eenrichtingsverkeer en er komt alleen bestemmingsverkeer. Daardoor kunnen kinderen er naar hartenlust spelen in het groene hart van het plein of in het naastgelegen speeltuintje.

De wijk Markgouw is centraal gelegen. Op korte afstand van het oude centrum van Monnickendam en binnen handbereik van winkelcentrum `t Spil voor al je dagelijkse boodschappen. Een supermarkt en bushalte liggen op een paar minuten lopen. De bus brengt je in minder dan 15 minuten naar station Noord van de Amsterdamse Noord-Zuidlijn. Ook andere voorzieningen, zoals apotheek, sportschool, scholen en recreatiegebied Hemmeland zijn in de nabije omgeving van deze instapklare woning te vinden.

Ben je op zoek naar een moderne, ruime tussenwoning waar de gereedschapskist dicht kan blijven? Neem dan zeker een kijkje in deze kant-en-klare woning aan het Pieter Appelplein 41 en maak snel een afspraak voor een vrijblijvende bezichtiging!

Bijzonderheden:
Moderne tussenwoning met 3 slaapkamers en 2 badkamers
Vergroot middels uitbouw en dakopbouw met dakkappellen
Houten en kunststof kozijnen met dubbel glas, 9 zonnepanelen, vloer-, dak- en spouwisolatie
Rustig en gunstig gelegen ten opzichte van faciliteiten
Mogelijkheid tot het bijkopen van een separate garage

Algemeen
Alle zich in deze aanbieding bevindende informatie is door ons met grote zorg samengesteld. Met betrekking tot deze informatie aanvaarden wij echter geen enkele aansprakelijkheid, noch kan aan deze informatie enig recht worden ontleend.

Kaart

Kenmerken

Overdracht

Vraagprijs
€ 450.000,- k.k.
Status
Verkocht
Aanvaarding
In overleg
Aangeboden sinds
Vrijdag 4 juli 2025
Laatste wijziging
Woensdag 1 oktober 2025

Bouw

Type object
Woonhuis, eengezinswoning, tussenwoning
Soort bouw
Bestaande bouw
Bouwperiode
1965
Dakbedekking
Dakpannen
Type dak
Zadeldak
Isolatievormen
Dakisolatie
Dubbel glas
Spouwmuren
Vloerisolatie

Oppervlaktes en inhoud

Perceeloppervlakte
137 m²
Woonoppervlakte
113,4 m²
Inhoud
391 m³
Oppervlakte externe bergruimte
4,4 m²

Indeling

Aantal bouwlagen
3
Aantal kamers
4 (waarvan 3 slaapkamers)
Aantal badkamers
2 (en 2 aparte toiletten)

Locatie

Ligging
Aan rustige weg
Dichtbij openbaar vervoer
In woonwijk
Nabij school

Tuin

Type
Achtertuin
Oriëntering
West
Staat
Goed onderhouden
Tuin 2 - Type
Achtertuin
Tuin 2 - Hoofdtuin
Ja
Tuin 2 - Oriëntering
Zuidoost
Tuin 2 - Heeft een achterom
Ja
Tuin 2 - Staat
Goed onderhouden

Energieverbruik

Energielabel
C

CV ketel

CV ketel
Intergas
Warmtebron
Gas
Bouwjaar
2017
Eigendom
Eigendom

Uitrusting

Warm water
CV-ketel
Verwarmingssysteem
Centrale verwarming
Ventilatie methode
Mechanische ventilatie
Keukenvoorzieningen
Inbouwapparatuur
Badkamervoorzieningen Badkamer 1
Douche
Jacuzzi
Vloerverwarming
Wastafelmeubel
Badkamervoorzieningen Badkamer 2
Douche
Toilet
Heeft kabel-tv
Ja
Tuin aanwezig
Ja
Telefoonaansluiting aanwezig
Ja
Heeft rolluiken
Ja
Heeft schuur/berging
Ja
Heeft een dakraam
Ja
Heeft zonwering
Ja
Heeft zonnepanelen
Ja
Heeft ventilatie
Ja

Kadastrale gegevens

Kadastrale aanduiding
Monnickendam E 197
Perceeloppervlakte
137 m²
Omvang
Geheel perceel
Eigendomsituatie
Eigen grond
Een gratis waardebepaling van je woning

Een gratis waardebepaling van je woning

Wil je jouw woning voor de beste prijs verkopen en heb je interesse in een vrijblijvende waardebepaling? Vul dan onderstaand formulier in en wij nemen contact met je op voor een afspraak.

Gratis waardebepaling